Nowoczesny bliźniak gotowy do zamieszkania

Dom na sprzedaż
1 290 000,00 PLN, Pow. 207,58 m2
Drukuj ofertę
Drukuj ofertę
Typ nieruchomości:
Dom
Powierzchnia:
207,58 m2
Typ transakcji:
sprzedaż
Liczba pokoi:
6
Lokalizacja:
Ołtarzew
Rok budowy:
2025
Liczba pięter:
2
Numer oferty:
34964542967
Powierzchnia działki:
328 m2
Cena za m2:
6 214,47 PLN
EN– full English version below – contact us anytime!

***OFERTA DEWELOPERA. KUPUJĄCY NIE PŁACI PROWIZJI I PCC***

Nowoczesny dom z dużym ogródkiem od południa (200m2), wykończony w jasnej, przyjemnej kolorystyce. W zabudowie bliźniaczej, funkcjonalny, z garażem w bryle budynku.
Położony przy spokojnej uliczce, zapewniającej ciszę i prywatność. Dom na dużej działce idealnej do zaaranżowania pięknego ogrodu i przestrzeni rekreacyjnej.


Położony w otoczeniu domów jednorodzinnych, przy cichej uliczce, z bliskim dojazdem do ulicy Poznańskiej. Takie położenie blisko trasy S8 i A2 zapewnia szybki dojazd do wielu dzielnic Warszawy.

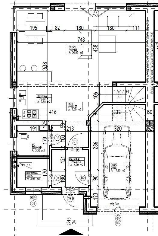
Parter:

- duży salon z aneksem kuchennym - 40,65 m2 z wyjściem na taras i ogródek, słoneczny, z panoramicznym oknem, od zachodu,
- hol -3,5 m2,
- wiatrołap - 4,70 m2 z miejscem na szafę w zabudowie,
- toaleta - 3,2 m2,
- garaż 18,7 m2,
- kotłownia 3,05 m2.
Łączna powierzchnia 73,05 m2.

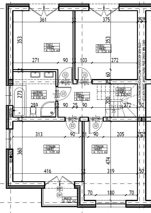
Piętro:
- pokój 14,95m2 z wyjściem na balkon,
- pokój 15,3 m22
- pokój 15,1 m2
- pokój 13,25 m2,
- duża łazienka 6,95 m2,
- hol 4,95 m2,
- schody 4,3 m2.
Łączna powierzchnia 74,53 m2.

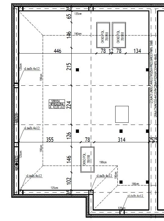
Poddasze użytkowe o powierzchni około 60m2.

Przedstawione zdjęcia wnętrz stanowią przykładową aranżację pomieszczeń. Dom jest sprzedawany w stanie deweloperskim, co daje przyszłemu właścicielowi pełną swobodę w urządzeniu wnętrza według własnych preferencji i potrzeb.

DODATKOWE INFORMACJE
*Media: prąd, woda, gaz, kanalizacja, światłowód
*Ogrzewanie podłogowe
*Bliźniak, oddzielony od sąsiedniego lokalu podwójną ścianą (50 cm)
*Domy wykończony wysokiej klasy materiałami- beton komórkowy, ściany wewnętrzne silka, ocieplenie styropianem 20 cm
*Teren ogrodzony (ogrodzenie panelowe), przed domem dwa miejsca postojowe jedno w garażu w bryle budynku, drzwi garażowe na pilota
*Rozprowadzona instalacja alarmowa

Zakup domu z udziałem współwłasności w drodze dojazdowej.

Gotowy, posiada pozwolenie na użytkowanie.

Zapewniamy bezpłatne wsparcie doradców kredytowych.

Zachęcam do kontaktu i umówienia się na prezentację domu:)


Niniejsze ogłoszenie nie stanowi oferty handlowej w rozumieniu przepisów prawa i ma charakter informacyjny.


***ENG***

No commission for the buyer.

Modern semi-detached house with a large garden (200 m²), finished in bright, pleasant tones. Functional layout with a garage integrated into the building structure.
Located on a quiet street, providing peace and privacy. The house sits on a spacious plot, ideal for creating a beautiful garden and recreational area.
Situated among single-family homes on a peaceful street, with easy access to Poznańska Street. The location near expressways S8 and A2 ensures quick access to many districts of Warsaw.

Ground Floor:
  • Spacious living room with a kitchenette – 40.65 m², with access to the terrace and garden, sunny with a west-facing panoramic window
  • Hallway – 3.5 m²
  • Entrance hall – 4.70 m² with space for a built-in wardrobe
  • Toilet – 3.2 m²
  • Garage – 18.7 m²
  • Boiler room – 3.05 m²
    Total area: 73.05 m²

First Floor:
  • Room – 14.95 m² with access to the balcony
  • Room – 15.32 m²
  • Room – 15.1 m²
  • Room – 13.25 m²
  • Large bathroom – 6.95 m²
  • Hallway – 4.95 m²
  • Staircase – 4.3 m²
    Total area: 74.53 m²

Usable attic with an area of approximately 60 m².

The interior photos shown are sample arrangements. The house is sold in a developer’s standard, giving the future owner full freedom to finish and arrange the interior according to their own preferences and needs.
ADDITIONAL INFORMATION:
  • Utilities: electricity, water, gas, sewage, fiber optic internet
  • Underfloor heating
  • Semi-detached house separated from the neighboring unit by a double wall (50 cm)
  • Built with high-quality materials: aerated concrete blocks, internal Silka walls, 20 cm styrofoam insulation
  • Fenced property (panel fencing), with two outdoor parking spaces in front and one parking spot in the garage (garage door with remote control)
  • Pre-installed alarm system wiring

Purchase of the house includes co-ownership share in the access road.

We offer free mortgage advisory support.

Feel free to contact me to schedule a viewing of the house :)

Nieprawidłowy adres E-mail